SOLUÇÕES RESIDENCIAIS


Temos uma gama de soluções residenciais. De acordo com as características do projeto, local e gostos do cliente, avaliamos entre sistemas de Light Steel Frame, construção modular em aço ou combinação de soluções.
Sempre com foco em obra rápida, sem stress e com 100% de qualidade.,


AS SOLUÇÕES INDUSTRIALIZADAS EM STEEL FRAME, PAINÉIS HEIMA E MODULAR,PERMITEM QUALQUER ARQUITETURA.
DE CASAS MODERNAS NA CIDADE ATÉ MÓDULOS MÓVEIS PARA O CAMPO. ESTES SÃO ALGUNS DOS NOSSOS PROJETOS












É possível conjugar sistemas industrializados com estruturas convencionais. Ideal para conseguir leveza ou para ampliações de obras.




Chalé tipo "A"
Chalé tipo "A"
Modular em 2 pavimentos
Modular moderno
Modular 9,15x3,15m
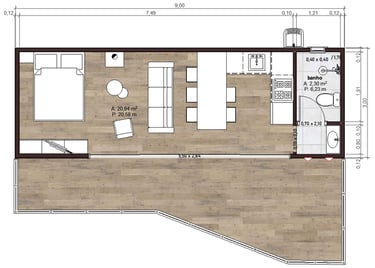
Planta modular 9,15x3,15m
Nossas soluções são para você que quer construir rápido, sem stress e com qualidade total.
2
QUER ENTENDER MELHOR? VAMOS CONVERSAR!
Teremos prazer em estudar sua necessidade. Chame no whats ou email e vamos falar sobre as soluções que melhor se encaixam pra você. Atendimento sem compromisso.
CONTATO
+55 54 8416-3328
